Bar-restaurant "Cinzzano"
Category: Bar-restaurant
Location: Tashkent
year: 2018
Status: Implementation
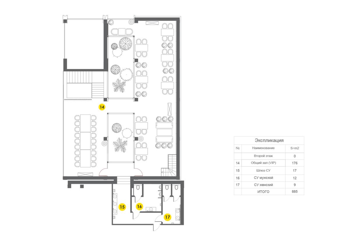
Area: 900 sq.m
Project group:
Art director: Zaur Mansurov
Art director: Renat Artov
Designer: Ibrahim Karimov / Margarita Karavaeva
Task:
create a new restaurant project, retaining the existing trees on the plot
Made by:
The appearance of the building immerses us in the architecture of the postmodern era. Here you can talk about several styles at the same time: high-tech, corporatism, neo-rationalism, environmentalism. The facade is decorated minimalist - concrete tiles and dark glass. The basic idea will not upset the balance of the environment, since the building was built on a small plot of land with 30 year old oak trees around. We tried to preserve the trees as much as possible, and as a result our patio appeared with oak trees in the middle of the building. Living trees are our pride and main element. Hidden lighting gives warmth and romance at first glance to a strict building.
